EN PT

Refúgio de Luz: A Dança da Arquitetura com a Natureza

Uma morada que transcende o tempo, entrelaçando tradição e modernidade em um diálogo poético com o ambiente.

Residência SF / Gabriel Micherif Arquitetura - Imagem 1 de 24

A residência projetada por Gabriel Micherif Arquitetura emerge como um santuário de serenidade, onde a arquitetura conversa com a paisagem em um harmonioso balé. Este refúgio foi meticulosamente concebido para se integrar de maneira sutil e poética ao seu entorno, celebrando uma simbiose entre o espaço construído e a natureza que o abraça. O coração da casa, um pátio central, pulsa com vida ao abrigar o espaço gourmet, convidando à convivência e ao desfrute dos sentidos.

Residência SF / Gabriel Micherif Arquitetura - Imagem 5 de 24
Residência SF / Gabriel Micherif Arquitetura - Imagem 5 de 24

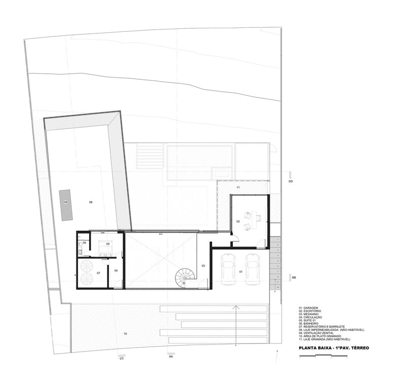
A planta em formato de U não apenas resguarda a intimidade dos moradores, mas também orquestra uma transição fluida entre os ambientes internos e o cenário natural. A fachada frontal apresenta elementos verticais que, como partituras de uma sinfonia visual, oferecem privacidade sem vedar a visão, permitindo que a paisagem espreite por ângulos cuidadosamente escolhidos. Estes brises verticais transformam a construção em uma moldura viva, onde o jogo entre ocultar e revelar enriquece a experiência sensorial.

Residência SF / Gabriel Micherif Arquitetura - Imagem 7 de 24
Residência SF / Gabriel Micherif Arquitetura - Imagem 7 de 24

Os beirais de madeira, mais que meros elementos funcionais, são um tributo à herança tropical e à sabedoria arquitetônica japonesa. Eles oferecem abrigo contra as intempéries, filtram a luz solar e guiam as brisas, tudo isso enquanto conferem uma sensação de leveza e proteção à estrutura. A escolha dos materiais ecoa esta narrativa de harmonia e equilíbrio. A madeira ecológica, evocando a técnica ancestral de carbonização japonesa, é reinterpretada de forma contemporânea e sustentável, dialogando com o vidro e a pedra natural que, em sua aplicação estratégica, criam um contraste entre solidez e transparência, entre o peso e a leveza.

Residência SF / Gabriel Micherif Arquitetura - Fotografia de Exterior
Residência SF / Gabriel Micherif Arquitetura - Fotografia de Exterior

A arquitetura resguarda seus habitantes dos olhares laterais, ao mesmo tempo que se abre generosamente para a paisagem e o espetáculo diário do pôr do sol. O espaço interno, desenhado com esmero, promove uma integração visual com o exterior, emoldurada por uma vasta área gramada que se estende no pátio central. Este convite ao relaxamento e à contemplação da natureza faz da moradia um lugar de encontros, onde técnica e poesia, tradição e inovação, se entrelaçam em uma dança arquitetônica que se adapta ao terreno e enaltece a vista.

Residência SF / Gabriel Micherif Arquitetura - Imagem 20 de 24
Residência SF / Gabriel Micherif Arquitetura - Imagem 20 de 24

Esta residência não é apenas um lugar para habitar, mas uma experiência imersiva de viver onde a arquitetura se torna uma extensão da paisagem, oferecendo uma vivência que é ao mesmo tempo elegante e envolvente, serena e estimulante. É um testemunho de que a boa arquitetura, aquela que dialoga com seu entorno, é capaz de transcender o tempo e revelar o sublime no cotidiano.

Residência SF / Gabriel Micherif Arquitetura - Fotografia de Exterior
Residência SF / Gabriel Micherif Arquitetura - Fotografia de Exterior