EN PT

Refúgio Elevado: A Harmonia da Casa Altiva

Uma fusão poética entre arquitetura e natureza, onde o design sustentável encontra a serenidade da Mata Atlântica.

Casa Altiva / Rai Matoso + Nuit Arquitetura - Fotografia de Exterior

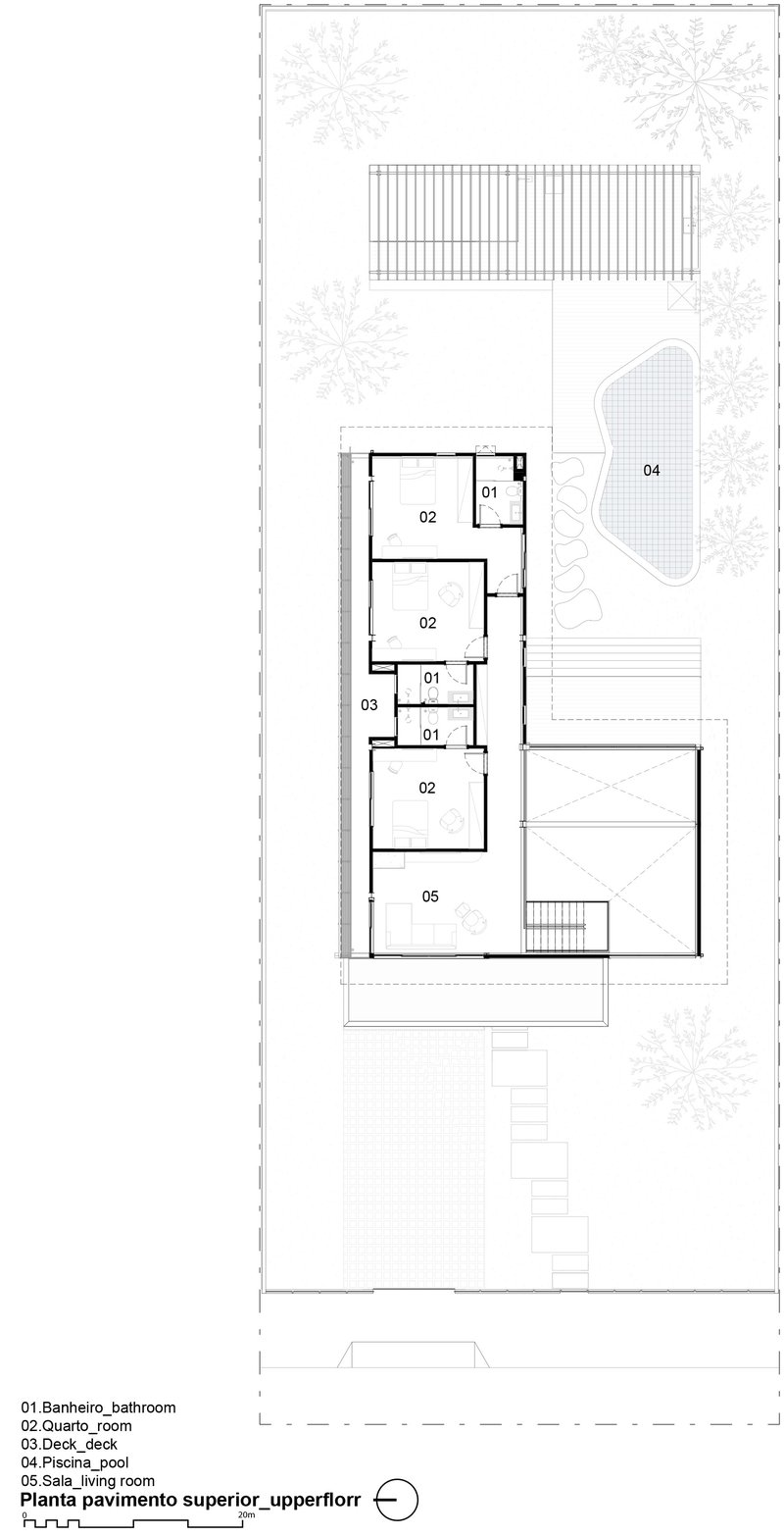
No coração de um condomínio emoldurado por fragmentos da exuberante Mata Atlântica, a Casa Altiva ergue-se como uma ode à coexistência harmoniosa entre o homem e a natureza. Situada nas proximidades da vibrante cidade do Recife, esta residência transcende o conceito tradicional de moradia, oferecendo uma experiência sensorial que se desdobra em cada detalhe de sua concepção. Ao adentrar este santuário elevado, a primeira impressão é de leveza. A casa, suspensa graciosamente sobre o terreno longilíneo, parece flutuar, desafiando a gravidade enquanto respeita as características naturais do solo que a acolhe. Essa escolha arquitetônica não apenas protege a edificação da umidade inerente ao solo, mas também permite uma intervenção mínima, preservando a integridade do ambiente ao seu redor. A estrutura da Casa Altiva é uma sinfonia de materiais cuidadosamente selecionados. A fusão de estrutura metálica com tijolos de solo-cimento e reciclados revela um compromisso com a sustentabilidade, onde cada elemento contribui para um desempenho térmico e acústico exemplar. Este compromisso é reforçado pela inclusão de telhas termoacústicas, que coroam a residência com conforto ambiental sem sobrecarregar sua leveza estrutural. As práticas sustentáveis são uma constante nesta obra, refletindo o envolvimento ativo dos proprietários no processo criativo. A integração de soluções inovadoras, como o reaproveitamento de água de chuva e a geração de energia por meio de painéis fotovoltaicos, sublinha um estilo de vida alinhado com a consciência ecológica. Além disso, a edificação recorre ao tratamento de esgoto por biodigestor, completando um ciclo virtuoso de eficiência e respeito ao meio ambiente. Internamente, a Casa Altiva desdobra-se em ambientes que fluem com uma clareza quase musical, cada um posicionado com maestria para capturar as ventilações predominantes e a luz do sol. A organização espacial segue o comprimento do terreno, permitindo que os setores social, íntimo e de serviço se interliguem de maneira visual e funcional. Grandes aberturas, estrategicamente posicionadas, promovem uma ventilação cruzada que refresca os interiores, enquanto a luz natural inunda os espaços, transformando cada momento do dia em uma nova experiência de iluminação. A relação com a paisagem é um dos pilares do projeto, onde a área social se abre tanto para a fachada frontal quanto para o fundo do terreno. Aqui, a mata adentra o olhar, oferecendo um refúgio visual de tranquilidade e contemplação. Esta integração é cuidadosamente orquestrada, com aberturas que emolduram a vegetação e reforçam a conexão entre o interior e o exterior. O gazebo de apoio, construído com tijolos reciclados de resíduos da construção civil, é um testemunho do compromisso com a inovação e a sustentabilidade. Fruto de uma pesquisa liderada pela engenheira Joedy Santa Rosa, este elemento não apenas complementa a estética da residência, mas também atinge resultados de resistência superiores, adicionando uma dimensão de solidez ao projeto. Em suma, a Casa Altiva é uma manifestação de identidade singular, onde arquitetura, técnica e modo de vida se entrelaçam em um abraço harmonioso. É um espaço que convida à contemplação, onde cada escolha consciente ressoa com a sabedoria de um design que celebra a beleza da simplicidade e a profundidade da integração com a natureza. Aqui, viver é um ato de poesia, uma dança serena entre o homem e o mundo natural.