EN PT

Harmonia Urbana em Terras Parisienses: Um Encontro entre o Concreto e a Natureza

Um refúgio arquitetônico onde a cidade e o verde se entrelaçam em perfeita sinfonia, transformando o cotidiano dos habitantes.

Neighborhood in Paris - Media Library and Family Flats, Student Residence, and Social Housing Units / La Architectures + Atelier Régis Roudil Architectes + Nicolas Hugoo Architecture - Exterior Photography, Balcony

Em meio à vibrante tapeçaria urbana do 13º arrondissement de Paris, um projeto arquitetônico audacioso floresce como uma ode à coexistência harmoniosa entre a natureza e a vida urbana. O bairro Paul Bourget, outrora um enclave isolado, agora resplandece com vigor renovado, resultado da união visionária entre a La Architectures, o Atelier Régis Roudil Architectes e a Nicolas Hugoo Architecture. Este ambicioso empreendimento de renovação urbana, iniciado em 2014, foi guiado pelo firme propósito de reconectar o bairro à cidade, proporcionando aos seus habitantes um cenário urbano de beleza perene e funcionalidade aprimorada.

Neighborhood in Paris - Media Library and Family Flats, Student Residence, and Social Housing Units / La Architectures + Atelier Régis Roudil Architectes + Nicolas Hugoo Architecture - Exterior Photography, Cityscape
Neighborhood in Paris - Media Library and Family Flats, Student Residence, and Social Housing Units / La Architectures + Atelier Régis Roudil Architectes + Nicolas Hugoo Architecture - Exterior Photography, Cityscape

Ao adentrar este espaço revitalizado, somos imediatamente envolvidos por uma sensação de acolhimento. A luz natural, cuidadosamente orquestrada, dança através das janelas amplas, lançando sombras suaves que acariciam as superfícies internas. Os materiais, escolhidos com esmero, falam de uma narrativa de sustentabilidade e respeito ao meio ambiente, com madeiras cálidas e texturas naturais que convidam ao toque e à contemplação.

Neighborhood in Paris - Media Library and Family Flats, Student Residence, and Social Housing Units / La Architectures + Atelier Régis Roudil Architectes + Nicolas Hugoo Architecture - Exterior Photography, Facade
Neighborhood in Paris - Media Library and Family Flats, Student Residence, and Social Housing Units / La Architectures + Atelier Régis Roudil Architectes + Nicolas Hugoo Architecture - Exterior Photography, Facade

A biblioteca de mídia, concebida pela La Architectures, ergue-se como um farol de conhecimento e cultura, um espaço onde a comunidade se encontra e se enriquece, cercada por jardins que trazem o verde de volta ao coração urbano. Este pulmão verde, meticulosamente integrado, não é apenas um deleite estético, mas também um refúgio que promove a biodiversidade e melhora a qualidade de vida dos residentes.

Neighborhood in Paris - Media Library and Family Flats, Student Residence, and Social Housing Units / La Architectures + Atelier Régis Roudil Architectes + Nicolas Hugoo Architecture - Interior Photography, Wood, Glass
Neighborhood in Paris - Media Library and Family Flats, Student Residence, and Social Housing Units / La Architectures + Atelier Régis Roudil Architectes + Nicolas Hugoo Architecture - Interior Photography, Wood, Glass

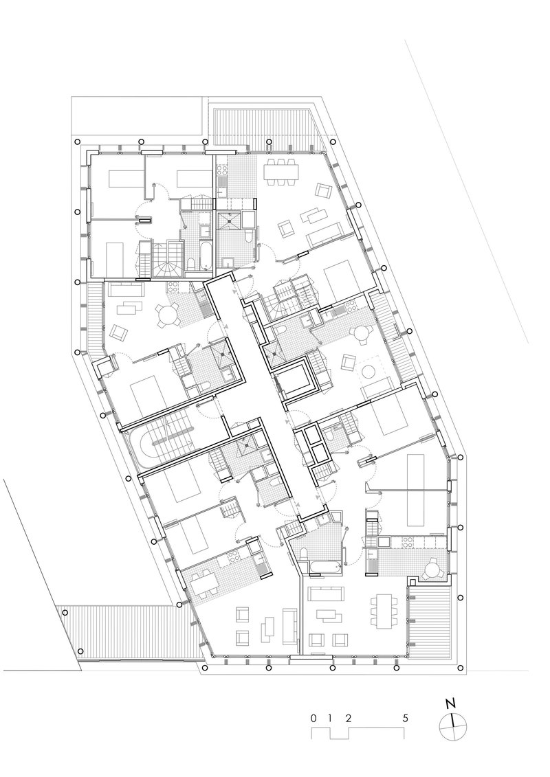
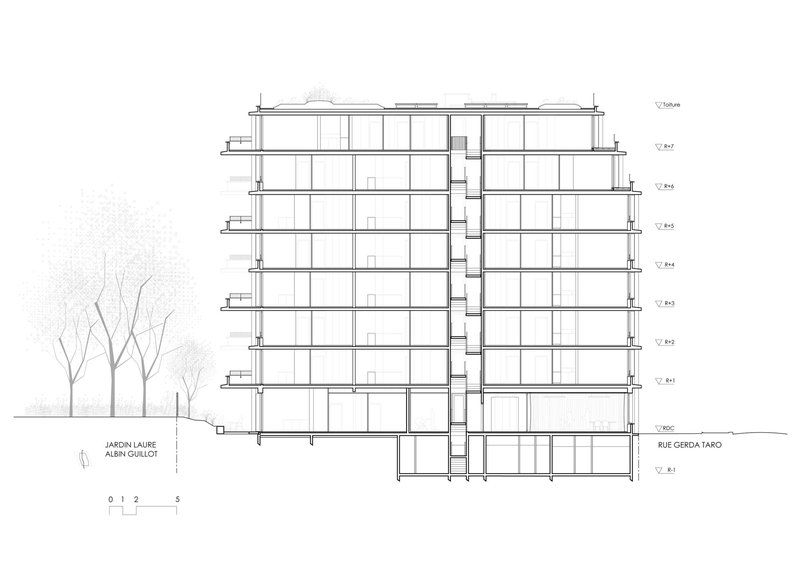
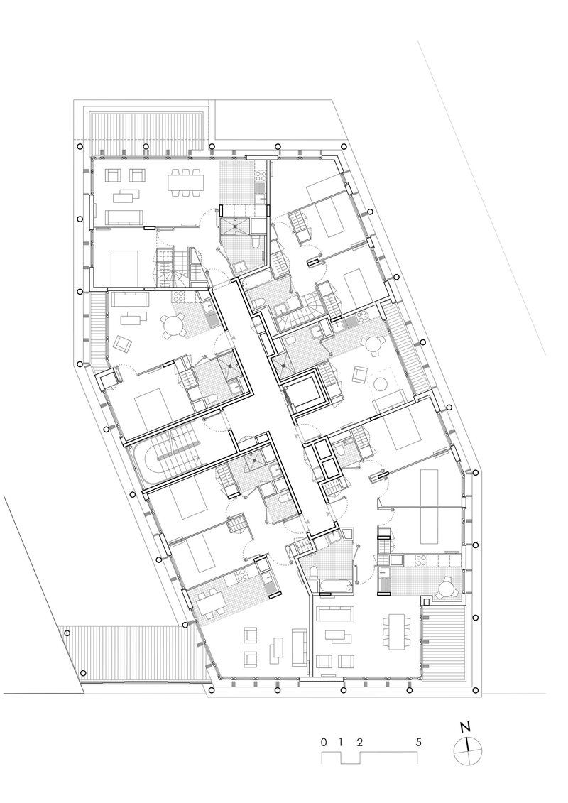
Adjacente à biblioteca, a residência estudantil, obra do Atelier Régis Roudil Architectes, oferece abrigo a mentes jovens e inquietas. Com 75 apartamentos, este edifício é um testemunho do compromisso com o futuro, um espaço onde a juventude pode florescer em um ambiente que inspira criatividade e aprendizado. A arquitetura aqui é um ato de equilíbrio, onde cada detalhe arquitetônico é uma declaração de respeito ao contexto e à função.

Neighborhood in Paris - Media Library and Family Flats, Student Residence, and Social Housing Units / La Architectures + Atelier Régis Roudil Architectes + Nicolas Hugoo Architecture - Exterior Photography, Concrete
Neighborhood in Paris - Media Library and Family Flats, Student Residence, and Social Housing Units / La Architectures + Atelier Régis Roudil Architectes + Nicolas Hugoo Architecture - Exterior Photography, Concrete

Por fim, a Nicolas Hugoo Architecture nos presenteia com 36 unidades de habitação social, um gesto de inclusão e acessibilidade. Estas moradias, projetadas para acolher famílias e indivíduos de diferentes origens, são um lembrete de que a verdadeira riqueza de uma cidade está em sua diversidade. Cada unidade é um santuário de conforto e dignidade, onde cada residente pode sentir-se em casa.

Neighborhood in Paris - Media Library and Family Flats, Student Residence, and Social Housing Units / La Architectures + Atelier Régis Roudil Architectes + Nicolas Hugoo Architecture - Exterior Photography
Neighborhood in Paris - Media Library and Family Flats, Student Residence, and Social Housing Units / La Architectures + Atelier Régis Roudil Architectes + Nicolas Hugoo Architecture - Exterior Photography

Este projeto monumental, liderado pela Elogie Siemp e Semapa, com design urbano da Urban Act, transcende a mera construção de edifícios. Ele é um manifesto de transformação urbana, uma celebração da possibilidade de se criar espaços que não apenas servem, mas também inspiram. Em cada esquina, em cada sombra projetada pela luz do sol, percebe-se o compromisso com um futuro onde a cidade e a natureza coexistem em harmonia, oferecendo aos seus habitantes um cenário de beleza duradoura e um convite constante à contemplação.

Neighborhood in Paris - Media Library and Family Flats, Student Residence, and Social Housing Units / La Architectures + Atelier Régis Roudil Architectes + Nicolas Hugoo Architecture - Exterior Photography
Neighborhood in Paris - Media Library and Family Flats, Student Residence, and Social Housing Units / La Architectures + Atelier Régis Roudil Architectes + Nicolas Hugoo Architecture - Exterior Photography