EN PT

Edifício Residencial Salariyeh | Heram Architects

Uma obra que redefine a interação entre espaço e privacidade

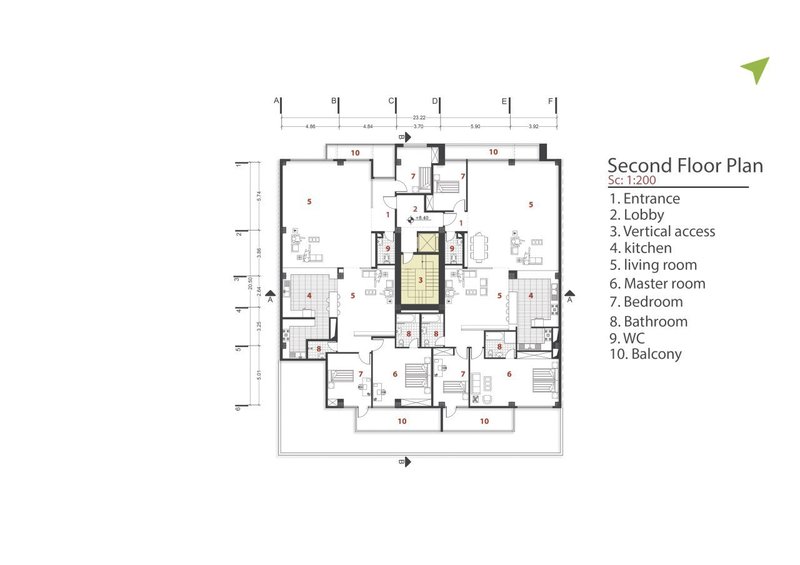
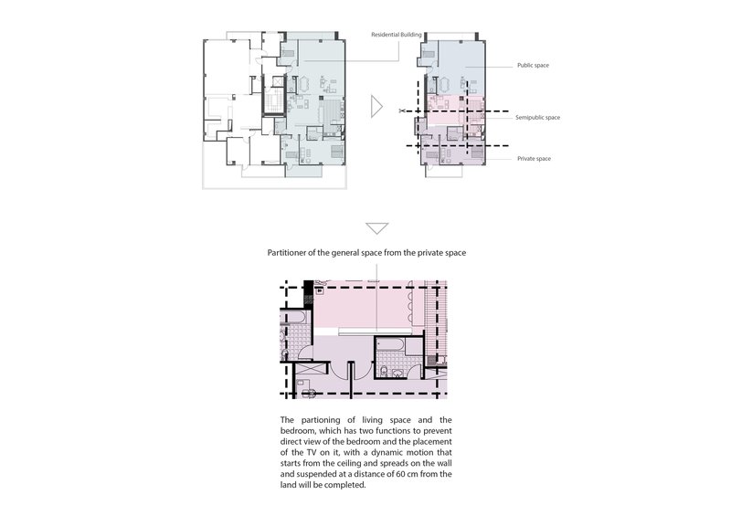
O Edifício Residencial Salariyeh ergue-se com elegância na cidade de Qom, desafiando as limitações impostas pelo contexto urbano e as normas municipais. Os edifícios que se inserem neste cenário frequentemente enfrentam a rigidez de fachadas padronizadas e plantas limitantes, que comprometem a dinâmica espacial tanto no interior quanto no exterior da edificação. Neste projeto, a interação entre os espaços internos e a paisagem externa foi cuidadosamente planejada, respeitando crenças religiosas locais, como a ‘privacidade’ e a ‘ausência de visibilidade do exterior para o interior’.

O processo de design, que se desenvolveu de forma meticulosa, foi pautado por uma pesquisa profunda dentro de um contexto específico. A concepção de sistemas de voladizos e a abordagem dada a eles representaram um desafio às normas urbanísticas, culminando em uma proposta que transcende a mera funcionalidade. A profundidade do projeto revelou camadas adicionais de questões e potencialidades, influenciadas por avanços no processo de design, aspectos sociais e culturais, além de detalhes estruturais e de implementação.

© deed studio6
© deed studio6

Dessa maneira, a proposta para a parede urbana do edifício foi concebida como um elemento que abriga funções internas, planos e critérios de privacidade. Este diálogo interativo entre interior e exterior conferiu um impacto significativo à percepção do edifício na paisagem urbana. Em última análise, o projeto se apresenta como uma forma integrada dentro do contexto urbano uniforme, ostentando uma identidade independente em relação ao que a circunda.

Informações do Projeto Arquitetos: Heram Architects País: Irã, Qom Área: 3600 m² Ano: 2018 Fotografias: Deed Studio Fabricantes: Grohe, AGT, Avana Stone, Thermoarena, Vista Best: Grohe Equipe de Design: Elika Zarei, Bahareh Sheisi, Marziyeh Golshahi, Andisheh Oskuyi, Fatemeh Asad Soleymani, Ehsan Kazerooni, Kazem Rezayani Cliente: Salar Nikoogoftar Tags: 2018, Conteúdo de Marca, Concreto, Deed Studio, Heram Architects, Irã, Qom, Aço, Madeira.

Mantenha-se Informado

Receba nossa seleção semanal de projetos e reflexões sobre arquitetura.