EN PT

Apartamento da Casa na Árvore / Projekt V Arhitektura

Um refúgio sensorial em Sarajevo

Apartamento da Casa na Árvore / Projekt V Arhitektura - Fotografia de Interiores, Sala de Estar, Madeira, Cadeira

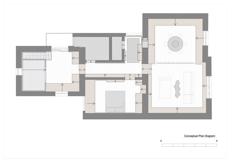
O apartamento projetado pela Projekt V Arhitektura, localizado em Sarajevo, ocupa uma área de 100 m² e representa um exemplo primoroso de retrofit sustentável. Encravado em um edifício de pátio da era austro-húngara, este espaço foi transformado em um universo acolhedor, onde a conexão com a natureza é palpável através do uso de materiais naturais cuidadosamente selecionados. Destinado a uma jovem família, o projeto destaca-se pelo uso de revestimentos em madeira de cerejeira, que conferem um toque de calor e elegância ao ambiente. As paredes, pintadas com argila, estabelecem uma harmonia natural, enquanto as bancadas de pedra e as cortinas de linho adicionam sofisticação e leveza. O travertino, utilizado em detalhes discretos, complementa a estética minimalista do espaço. Um dos elementos mais encantadores deste apartamento é a Casa na Árvore infantil, uma estrutura pré-fabricada e sob medida, elaborada em madeira laminada de abeto, que instiga a imaginação das crianças e cria um espaço lúdico. O resultado é um ambiente que evoca uma sensação de atemporalidade, dialogando com as tradições do minimalismo e do modernismo do século XX em Sarajevo, ao mesmo tempo em que abriga uma curadoria de artesanato e arte contemporânea da Bósnia. Esta obra não apenas redefine o espaço habitacional, mas também promove uma vivência sensorial que envolve todos os sentidos.

Mantenha-se Informado

Receba nossa seleção semanal de projetos e reflexões sobre arquitetura.