EN PT

Jardim de Ambientes Dobráveis

Uma ousada reinterpretação do espaço residencial que dissolve barreiras e abraça a natureza

Folded Rooms Garden / RAD+ar (Research Artistic Design + architecture) - Image 1 of 29

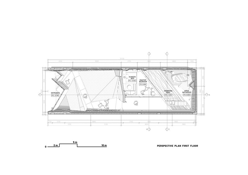
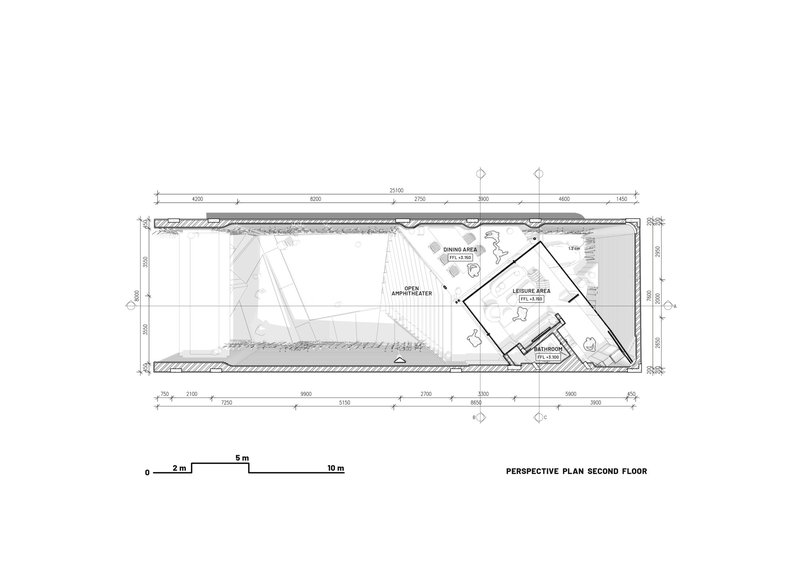
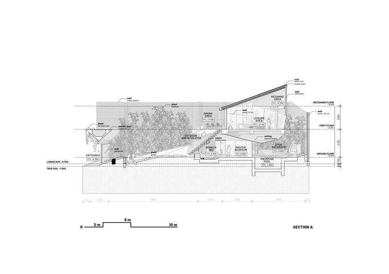
Em meio à vibrante tapeçaria urbana de Bandung, Indonésia, surge uma inovação arquitetônica que desafia convenções e celebra a harmonia entre o espaço construído e o natural. O 'Jardim de Ambientes Dobráveis', concebido pelo estúdio vanguardista RAD+ar, propõe uma revolução silenciosa: suprimir as paredes verticais tradicionais em favor de uma sequência contínua de ambientes que respiram e se expandem em sincronia com a paisagem circundante.

Folded Rooms Garden / RAD+ar (Research Artistic Design + architecture) - Image 2 of 29
Folded Rooms Garden / RAD+ar (Research Artistic Design + architecture) - Image 2 of 29

A experiência sensorial proporcionada por este projeto é verdadeiramente singular. Ao adentrar o espaço, somos imediatamente envolvidos por uma sensação de continuidade, como se o interior e o exterior dialogassem em um balé harmonioso. A luz, filtrada por superfícies translúcidas e reflexivas, dança suavemente pelas dobras arquitetônicas, criando uma atmosfera que muda com o passar das horas, numa sinfonia de sombras e brilhos.

Folded Rooms Garden / RAD+ar (Research Artistic Design + architecture) - Image 3 of 29
Folded Rooms Garden / RAD+ar (Research Artistic Design + architecture) - Image 3 of 29

Os materiais escolhidos para compor este refúgio urbano são uma ode à sensibilidade e à sutileza. Pedras naturais, madeira texturizada e metais polidos se entrelaçam em uma paleta que exala sofisticação e serenidade. A interação tátil com essas superfícies desperta uma conexão orgânica com o espaço, convidando à contemplação e ao repouso.

Folded Rooms Garden / RAD+ar (Research Artistic Design + architecture) - Exterior Photography
Folded Rooms Garden / RAD+ar (Research Artistic Design + architecture) - Exterior Photography

Este projeto não é apenas uma intervenção arquitetônica; é uma declaração poética sobre a possibilidade de habitar o mundo moderno de maneira mais consciente e integrada. Ao desafiar a noção de que as paredes devem ser limites, o 'Jardim de Ambientes Dobráveis' nos convida a repensar o sentido de lar e a abraçar a fluidez dos tempos contemporâneos. Assim como os jardins de outrora, que emolduravam palácios e vilas, este jardim urbano oferece um santuário de beleza e tranquilidade em meio ao caos citadino.

Folded Rooms Garden / RAD+ar (Research Artistic Design + architecture) - Interior Photography, Wood, Chair, Beam
Folded Rooms Garden / RAD+ar (Research Artistic Design + architecture) - Interior Photography, Wood, Chair, Beam

A inspiração para tal ousadia ecoa na tradição asiática de criar espaços que honram a natureza, evocando o espírito dos jardins zen e dos pavilhões abertos que pontuam paisagens de sonho. Cada ambiente, dobrado sobre si mesmo como um origami arquitetônico, revela novas perspectivas e dimensões, instigando o olhar a explorar e o espírito a se renovar.

Folded Rooms Garden / RAD+ar (Research Artistic Design + architecture) - Exterior Photography
Folded Rooms Garden / RAD+ar (Research Artistic Design + architecture) - Exterior Photography

Em última análise, o 'Jardim de Ambientes Dobráveis' não é apenas um lugar para viver, mas uma experiência estética e emocional que redefine o conceito de residência. Ao subverter a rigidez das paredes, a arquitetura aqui se transforma em um poema de espaços livres, onde a vida flui e se refaz, em perfeita sintonia com o ritmo da natureza.

Folded Rooms Garden / RAD+ar (Research Artistic Design + architecture) - Image 7 of 29
Folded Rooms Garden / RAD+ar (Research Artistic Design + architecture) - Image 7 of 29

Mantenha-se Informado

Receba nossa seleção semanal de projetos e reflexões sobre arquitetura.