EN PT

Edifício Residencial PETÉN / REIMS 502

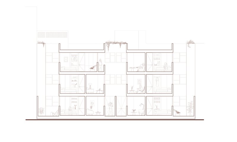
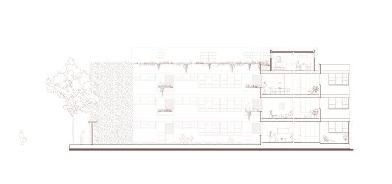
Construído na 2023 na Cidade do México, México. Imagens do Ariadna Polo. Na Cidade do México, os edifícios da década de 1950 no bairro Vértiz-Narvarte revelavam uma linguagem arquitetônica moderna, ma

Edifício Residencial PETÉN / REIMS 502 - Fotografia de Exterior, Balcão

Descrição enviada pela equipe de projeto.Na Cidade do México, os edifícios da década de 1950 no bairro Vértiz-Narvarte revelavam uma linguagem arquitetônica moderna, marcada por linhas precisas, geometria expressiva e fachadas minimalistas. Nesse contexto, em 1956 foi construído umedifício multifamiliardestinado à classe trabalhadora, projetado pelo arquiteto e engenheiro civil Enrique Hernández Camarena. Agora você receberá atualizações das contas que você segue! Siga seus autores, escritórios, usuários favoritos e personalize seu stream.

Mantenha-se Informado

Receba nossa seleção semanal de projetos e reflexões sobre arquitetura.