EN PT

Luz e Sombra: A Harmonia da Casa dos Sobreiros II

Um refúgio de serenidade e simplicidade, onde interior e exterior se entrelaçam em perfeita harmonia.

Casa dos Sobreiros II / Urbanpolis – Construções e Empreendimentos, Lda - Fotografia de Exterior

Imersa em uma atmosfera de serenidade e elegância, a Casa dos Sobreiros II é uma ode à simplicidade e à luz. Concebida com a ambição de criar um espaço habitacional que conjugue rigor construtivo e uma vivência cotidiana fluida, esta residência nos convida a uma experiência espacial onde o diálogo entre interior e exterior é contínuo e envolvente.

Casa dos Sobreiros II / Urbanpolis – Construções e Empreendimentos, Lda - Imagem 6 de 28
Casa dos Sobreiros II / Urbanpolis – Construções e Empreendimentos, Lda - Imagem 6 de 28

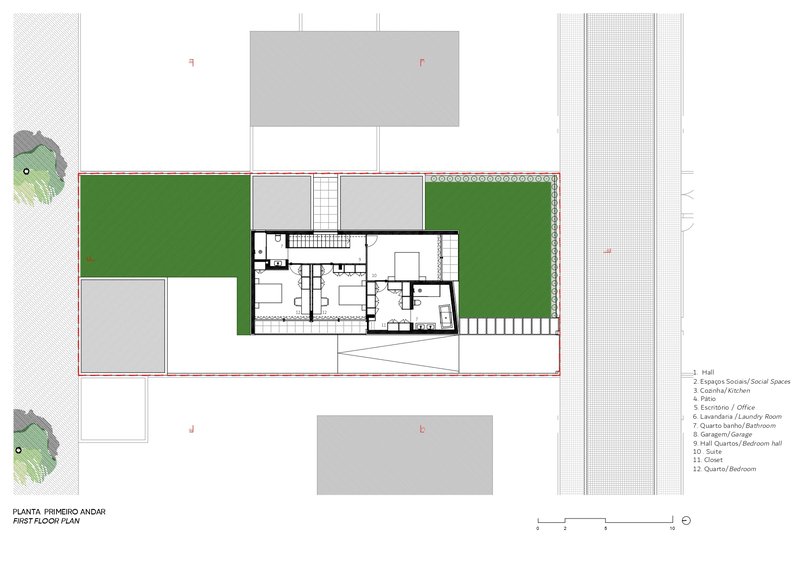
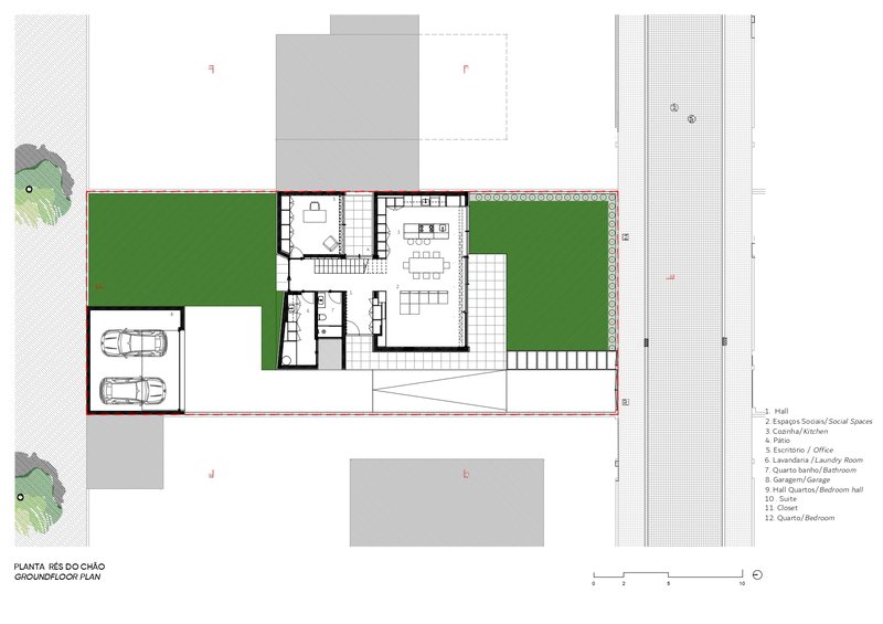
Dois eixos principais estruturam a narrativa arquitetônica deste lar: o eixo transversal, que recebe os visitantes com um pátio interior, banha a casa de luz natural, desenhando as passagens e os momentos de transição. Este pátio, coração pulsante da casa, qualifica os espaços de circulação, transformando o simples ato de percorrer o ambiente em uma jornada iluminada. O eixo longitudinal, por sua vez, orientado em direção ao jardim ao sul, estabelece uma relação visual ininterrupta com o exterior, guiando o olhar e o visitante aos quartos no piso superior.

Casa dos Sobreiros II / Urbanpolis – Construções e Empreendimentos, Lda - Fotografia de Exterior
Casa dos Sobreiros II / Urbanpolis – Construções e Empreendimentos, Lda - Fotografia de Exterior

A ordem do projeto se revela em um jogo harmonioso de cheios e vazios, onde transparências e opacidades se entrelaçam para estruturar a coexistência entre vida social e privada. No rés-do-chão, os espaços sociais se desdobram em direção ao jardim, que se torna uma extensão natural da sala e da cozinha. Este espaço aberto, adornado por amplos planos envidraçados, intensifica a sensação de continuidade, favorecendo a convivência familiar e o prazer de habitar.

Casa dos Sobreiros II / Urbanpolis – Construções e Empreendimentos, Lda - Imagem 24 de 28
Casa dos Sobreiros II / Urbanpolis – Construções e Empreendimentos, Lda - Imagem 24 de 28

A volumetria superior, suspensa de forma graciosa, cria zonas de sombra e refúgio, enriquecendo o conforto térmico e enaltecendo a vivência ao ar livre. No piso superior, os espaços privados se organizam ao longo de uma galeria longitudinal, onde um vão vertical articula os dois andares, conferindo amplitude e luminosidade aos ambientes. As varandas e recuos dos quartos garantem a privacidade sem comprometer a entrada generosa de luz que permeia todos os cômodos.

Casa dos Sobreiros II / Urbanpolis – Construções e Empreendimentos, Lda - Imagem 25 de 28
Casa dos Sobreiros II / Urbanpolis – Construções e Empreendimentos, Lda - Imagem 25 de 28

A entrada principal, situada lateralmente, permite que o percurso do visitante seja uma descoberta gradual da volumetria da casa. Essa abordagem evita a exposição imediata aos espaços sociais, reforçando a privacidade dos moradores e valorizando a experiência arquitetônica. A fachada principal, voltada para o sul, é marcada por uma grande suspensão que define a identidade do lar. A leve inclinação da parede da suíte introduz uma tensão sutil no volume, capturando a luz de maneira única e conferindo dinamismo à composição.

Casa dos Sobreiros II / Urbanpolis – Construções e Empreendimentos, Lda - Fotografia de Interiores, Madeira, Escada
Casa dos Sobreiros II / Urbanpolis – Construções e Empreendimentos, Lda - Fotografia de Interiores, Madeira, Escada

A fachada lateral revela um delicado jogo de volumes sobrepostos, recortados para acolher a entrada, criando uma dinâmica de cheios e vazios que reforça a expressão volumétrica. A fachada norte, quase cega, apresenta uma única abertura de acesso que contrasta com a luminosidade interior, exaltando a simplicidade formal e o caráter introspectivo desta face da casa.

Casa dos Sobreiros II / Urbanpolis – Construções e Empreendimentos, Lda - Fotografia de Interiores, Cozinha, Madeira, Iluminação, Vidro, Cadeira
Casa dos Sobreiros II / Urbanpolis – Construções e Empreendimentos, Lda - Fotografia de Interiores, Cozinha, Madeira, Iluminação, Vidro, Cadeira

A materialidade e os sistemas de armazenamento embutidos baseiam-se na sobriedade e precisão: superfícies brancas contínuas, caixilharias de perfil mínimo, amplos envidraçados e pavimentos uniformes reforçam a intenção de criar um ambiente depurado e puro. A iluminação, discreta e embutida, alinhada com os eixos geométricos, prolonga à noite a leitura da casa como um objeto volumétrico, destacando sombras, profundidades e proporções.

Casa dos Sobreiros II / Urbanpolis – Construções e Empreendimentos, Lda - Imagem 13 de 28
Casa dos Sobreiros II / Urbanpolis – Construções e Empreendimentos, Lda - Imagem 13 de 28

Em suma, a Casa dos Sobreiros II é um exercício de equilíbrio entre forma, função e luz. A clareza volumétrica, a articulação cuidadosa entre privacidade e abertura, e a relação permanente com o exterior traduzem uma abordagem arquitetônica que busca intensidade na simplicidade e conforto na precisão. Mais do que um objeto construído, a casa propõe uma experiência de habitar única, centrada na serenidade, na luz e na continuidade espacial.

Casa dos Sobreiros II / Urbanpolis – Construções e Empreendimentos, Lda - Fotografia de Interiores, Vidro, Concreto
Casa dos Sobreiros II / Urbanpolis – Construções e Empreendimentos, Lda - Fotografia de Interiores, Vidro, Concreto