EN PT

Ostra House: Um Refúgio de Harmonia e Luz

Um projeto de renovação em Brasília que celebra a fluidez dos espaços e a integração com a natureza.

Ostra House

Entre as quietudes e sutilezas de um bairro residencial em Brasília, ergue-se a Ostra House, um projeto de renovação que anuncia o início de uma nova jornada familiar. Com a assinatura distintiva do Studio Pippa, o projeto reverbera o desejo dos clientes por espaços flexíveis e integrados, desenhando uma experiência de vida que conversa com a luz, a matéria e o espírito do lugar.

Ostra House
Ostra House

A fachada frontal, marcada pela precisão composicional, revela a leveza estrutural por meio de uma linha de viga de telhado que se projeta sobre o plano vertical da parede externa. Esta linha não apenas delineia a escala da casa, mas também acentua a horizontalidade acolhedora de seus interiores. O revestimento em pedra natural do plano vertical antecipa a experiência interna, guiando o visitante por um caminho que culmina em uma unidade formal entre linha, plano e volume.

Ostra House
Ostra House

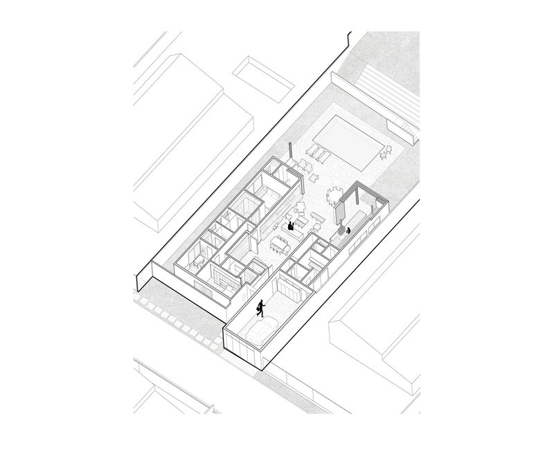
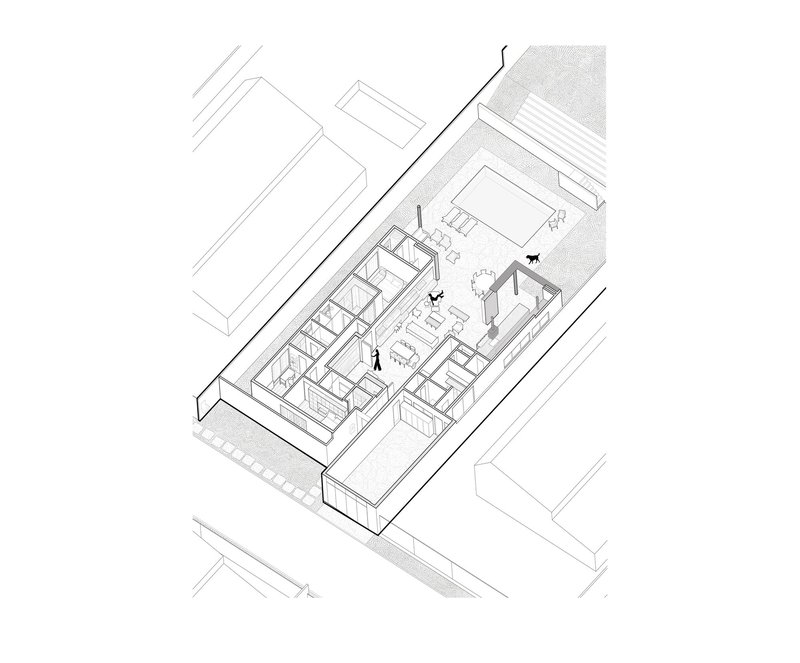
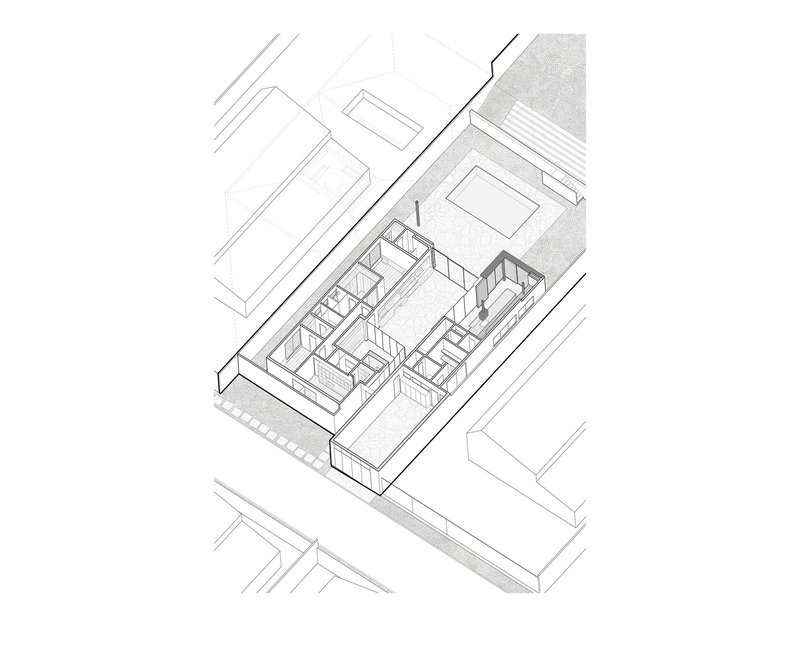
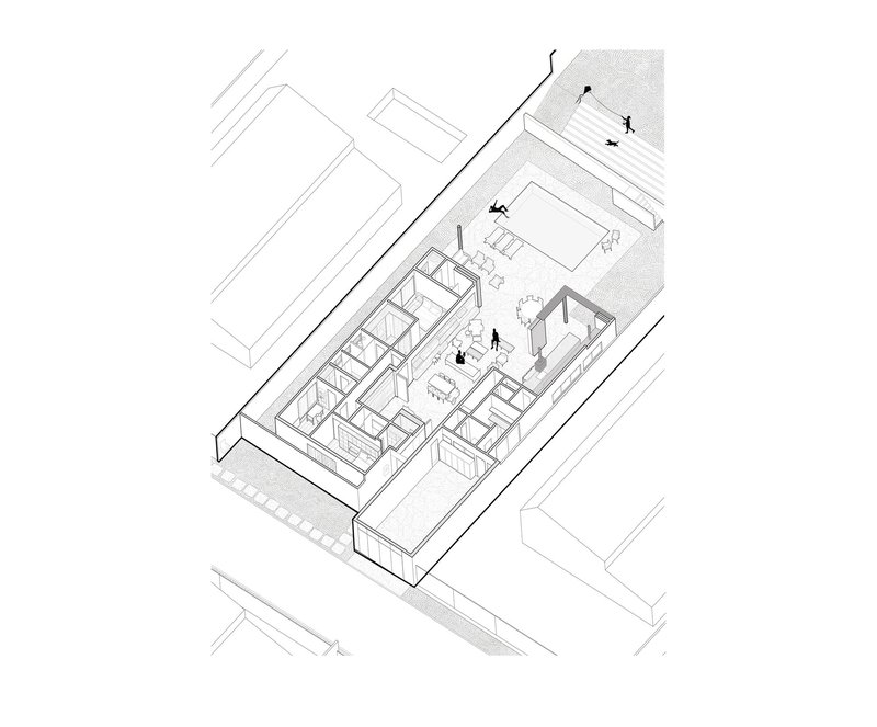
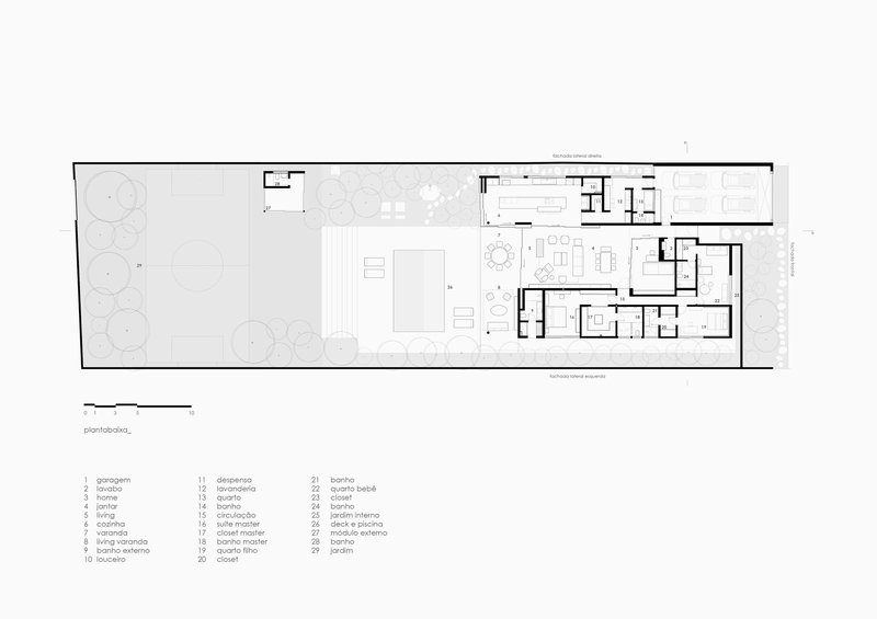
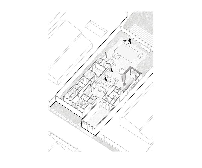
Organizada em um único nível, a residência se divide em dois blocos principais. O primeiro abriga a área íntima, composta por três suítes equipadas com closets, enquanto o segundo concentra os espaços de serviço, como cozinha, área gourmet, lavanderia e garagem. Entre esses blocos, a área social se desdobra, unindo sala de estar, sala de jantar e home office em um espaço contínuo.

Ostra House
Ostra House

A articulação entre esses ambientes é mediada por um sistema de portas de correr, que permite uma conexão fluida e dinâmica entre a cozinha, sala de estar, sala de jantar e home office. Este jogo de aberturas e fechamentos, reminiscente do movimento de uma ostra, inspira o nome da residência.

Ostra House
Ostra House

Nos espaços de convivência e gourmet, amplos painéis de vidro deslizantes permitem a entrada generosa de luz natural, projetando o jardim para dentro da casa e dissolvendo as fronteiras sensoriais entre arquitetura e paisagem. Estratégias adicionais, como claraboias nos lavabos e banheiros da área íntima, além de janelas de peitoril baixo nos quartos, ampliam ainda mais a entrada de luz.

Ostra House
Ostra House

O mobiliário em madeira natural desempenha um papel central neste gesto de continuidade. A prateleira suspensa, generosa e desenhada pelo escritório, instalada sob o extenso plano branco, enfatiza a horizontalidade e traz equilíbrio e aconchego aos espaços. Mais que um elemento estético ou funcional, esta prateleira abriga objetos, obras de arte, livros e fotografias que carregam as memórias e a personalidade dos moradores.

Ostra House
Ostra House

Complementando o espaço, a coleção de móveis dos clientes destaca peças icônicas do design modernista e contemporâneo brasileiro. A escolha de materiais naturais reforça a narrativa da casa. O piso em pedra bruta, com paginação orgânica, une os espaços de convivência, jantar e gourmet, estendendo-se até a área externa e a piscina, enquanto a madeira natural presente na marcenaria e no piso das áreas íntimas cria uma atmosfera acolhedora.

Ostra House
Ostra House

As paredes brancas refletem a luz natural, intensificando a sensação de amplitude, e o mármore branco utilizado nos banheiros reproduz o mesmo efeito. O projeto explora os limites espaciais através do estudo da composição formal e da dinâmica dos usos residenciais, resultando em uma resposta arquitetônica coesa que propõe uma experiência marcada pela fluidez, equilíbrio e intimidade.

Ostra House
Ostra House